欢迎来到淄博厂房网!
设为首页 | 加入收藏
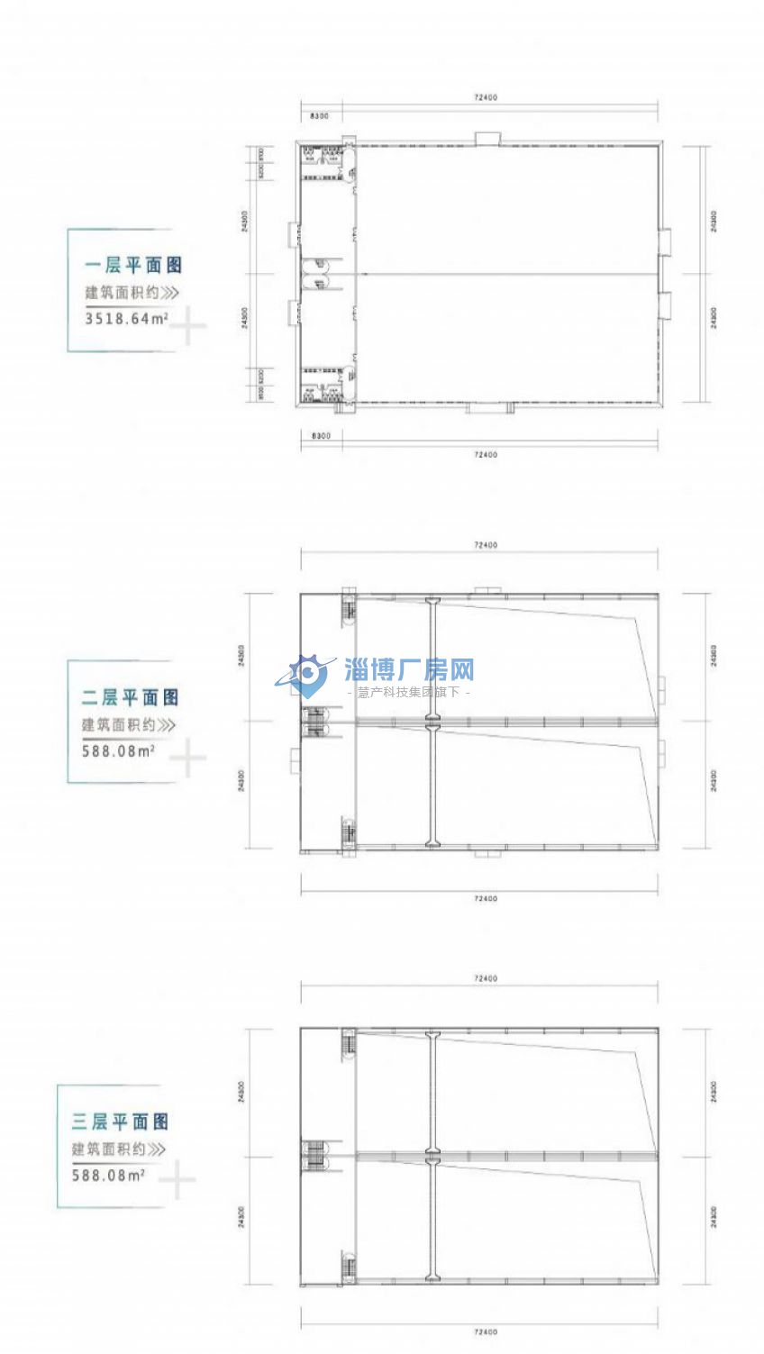
淄川厂房出售 |中建国际智造中心 50年大产权 30%首付
推荐厂房
环评随时看房 国标钢结构现房厂房出租 配套齐全
绿天使沂源厂房招租,房租减免
淄博国家级创新大厦招商
最新厂房
1
均价: 面议
2
均价: 8元/平米/天
3
4
均价: 1元/平米
5
均价: 0.05元/平米/天
6
均价: 10元/平米/天
7
均价: 0.3元/平米/天
8
均价: 0.32元/平米/天
9
10